In a market where most buyers face a choice between older homes needing work or 12+ month build times, this brand-new residence offers something different: immediate possession with genuine premium finishes throughout.
The Property
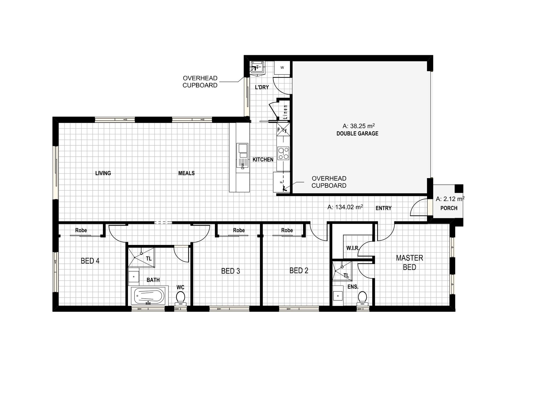
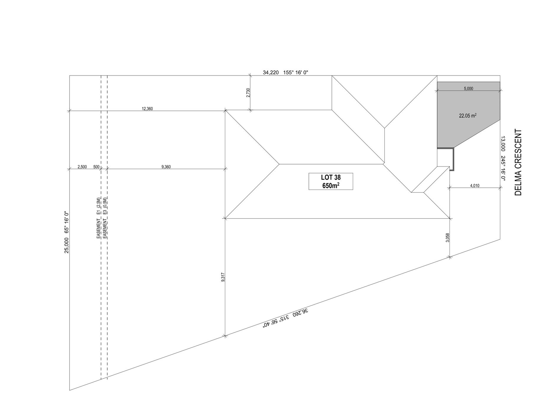
A thoughtfully upgraded 4-bedroom home on 650sqm in the Highlands View estate. At 175sqm of living space, this is a family home designed with both style and function in mind.
The north-northwest facing home captures excellent natural light throughout the day. The master bedroom features a walk-in robe and ensuite with frameless shower and premium matte black fixtures. Three additional bedrooms all include built-in robes. The main bathroom offers both bath and separate shower – frameless, like the ensuite.
The open-plan kitchen, dining and living area forms the heart of the home, flowing seamlessly to the secure rear yard. The kitchen features Avenza Bianco stone benchtops, 900mm cooktop and oven, and plumbed fridge tap. Bodega Oak cabinetry with soft-close throughout provides ample storage, complemented by a dedicated (non-walk-in) pantry.
The laundry, accessed directly from the garage, features matching Bodega Oak cabinetry with Avenza Bianco laminex benchtops and undermounted sink, plus dedicated linen storage. Walk through to either the backyard or kitchen.
Genuine Upgrades ($30,000+ invested)
These aren't minor touches – they're substantial improvements over standard specification:
*2.7m ceilings throughout make every room feel more spacious and let in more natural light.
*Full ducted heating and cooling delivers consistent temperature to every room without noisy wall units.
*Zero carpet means easy cleaning and maintenance that lasts for years without replacement.
*Grey Oak laminate in bedrooms and commercial-grade Sika tiles in living areas provide durable, quality flooring throughout.
*Matte black Lane Hardware fittings and fixtures creates a cohesive, modern look across the entire home
*Frameless showers in both bathrooms deliver a premium feel and easier cleaning
*LED downlights throughout reduce energy costs and provide better quality lighting
*Strategic powerpoint placement puts power exactly where you need it for kitchen appliances, bedside lamps, home offices, in the garage and even for your home WiFi/Mesh network with dedicated power points in the ceiling.
*Stone benchtops in the kitchen (Avenza Bianco) provide durability and visual impact, matched with Avenza Bianco laminex in bathrooms and laundry.
*900mm cooktop with a matching oven gives you proper cooking space for family meals.
*Plumbed fridge tap means ice makers and water dispensers work without modification.
*Bodega Oak soft-close cabinetry throughout eliminates slamming doors and drawers.
*Blackout roller blinds on every window are included so you can move in without additional window covering costs and get a good night sleep.
*Upgraded premium toilets in both bathrooms provide better performance and far easier cleaning
Location
Positioned at the end of a quiet cul-de-sac on the eastern edge of Seymour, backing onto horse paddocks with views toward state forest and surrounding bushland.
Despite the peaceful setting, you're just 5-7 minutes from the opposite side of town and all amenities – supermarkets, Bunnings, cafes, shops.
*1hr 20min train to Melbourne's Southern Cross Station
*45min drive to Melbourne's northern suburbs via the Hume Highway (dual carriageway)
*15min to Puckapunyal military base
*NBN ready
*Train services running both north to Albury and south to Melbourne
The location appeals to military personnel posted to Puckapunyal, Melbourne commuters seeking affordability without sacrificing connectivity, and families looking for a slower pace while staying close to the city.
Outdoor & Parking
Fully fenced yard with Colourbond fencing throughout and side gate access for a secure, child and pet-friendly outdoor space. The 650 sqm block offers genuine space for landscaping and outdoor living – a blank canvas ready for your vision.
Double garage with internal access, plus concrete driveway parking for 1-2 additional vehicles. Street parking is readily available.
First Home Buyers
Eligible purchasers may qualify for the $10,000 First Home Owner Grant.
- Fully Fenced
- Remote Garage
- Built-in Wardrobes
































